来源 :海口国家高新区管委会2023-03-03
项目情况:一、建设单位名称:康芝药业股份有限公司二、建设项目名称:民族药制剂楼项目三、建设项目位置:海南省海口市秀英区海口国家高新技术产业开发区药谷三路6号康芝药业股份有限公司四、公示内容康芝药业股份有限公司民族药制剂楼项目于2021年12月 7日完成规划报建,项目总建筑面积53269.37平方米,本次申请第一次变更,调整的内容:调整的内容1、总建筑面积由53269.37㎡调整为49735.06㎡;2、地上建筑面积由48225.21㎡调整为49735.06㎡;3、地下建筑面积由5044.16㎡调整为0㎡; 4、3#生产厂房楼层数由10/-1层调整至10层,建筑高度相应由45.3m调整为45.3m。
|
|
变更前 |
变更后 |
增加面积 |
|
总建筑面积(㎡) |
53269.37 |
49735.06 |
-3534.31 |
|
地上建筑面积(㎡) |
48225.21 |
49735.06 |
1509.85 |
|
地下面积(㎡) |
5044.16 |
0 |
-5044.16 |
|
计容面积(㎡) |
47980.41 |
49411.6 |
1431.19 |
本次申请变更总建筑面积由53269.37平方米(地上面积48225.21平方米,地下面积5044.16平方米),变更为49735.06平方米(地上面积49735.06平方米,地下面积0平方米),地上面积增加1509.85平方米,地下面积增加-5044.16平方米,容积率由1.9变更为1.92 。其它不做修改。公示时间:7个工作日公示地点:高新区门户网站(http://gxq.haikou.gov.cn/);建设项目现场。咨询电话:65580991,联系人:吴女士、黎先生。 ?海口国家高新区管委会
2023年3月3日因网络空间有限,仅公示重点内容。如需详情,请咨询公示中留下的联系电话或到海榆中线8.8公里狮子岭工业园海口国家高新区管委会行政审批局进行咨询。意见或建议应在公示期限内提出,逾期未反馈将视为无意见。??民族药制剂楼项目经济指标表变更前
民族药制剂楼项目经济指标表变更后
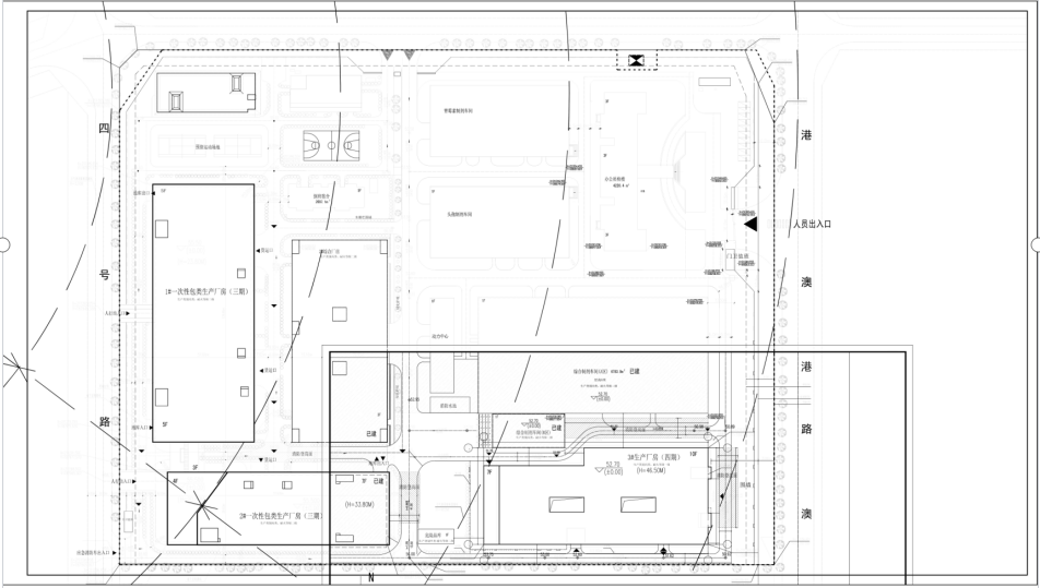
总平面图变更前
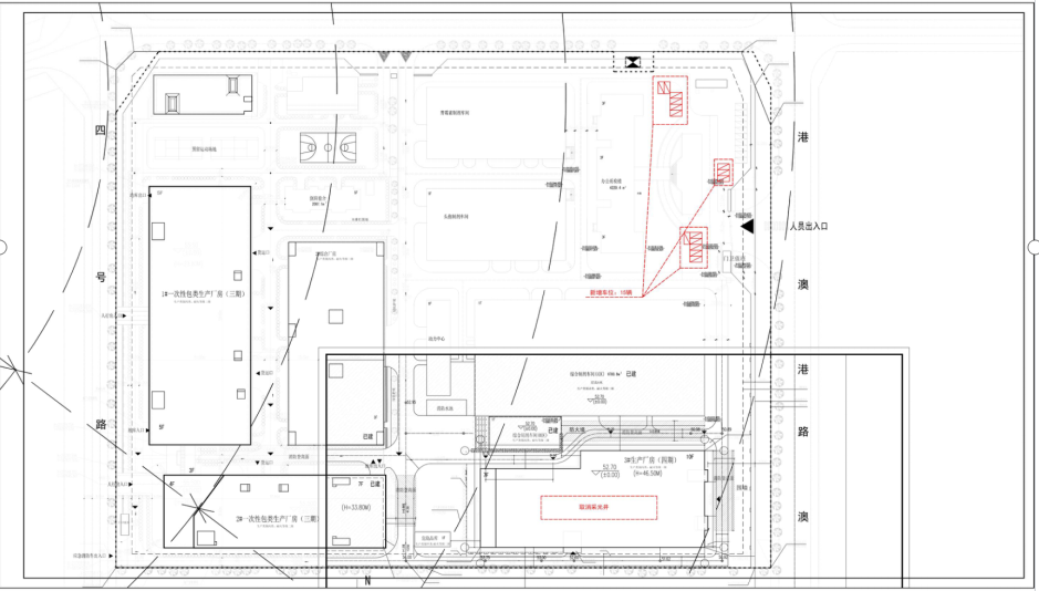
总平面图变更后
地下室平面图变更前
地下室平面图变更后无首层平面图变更前
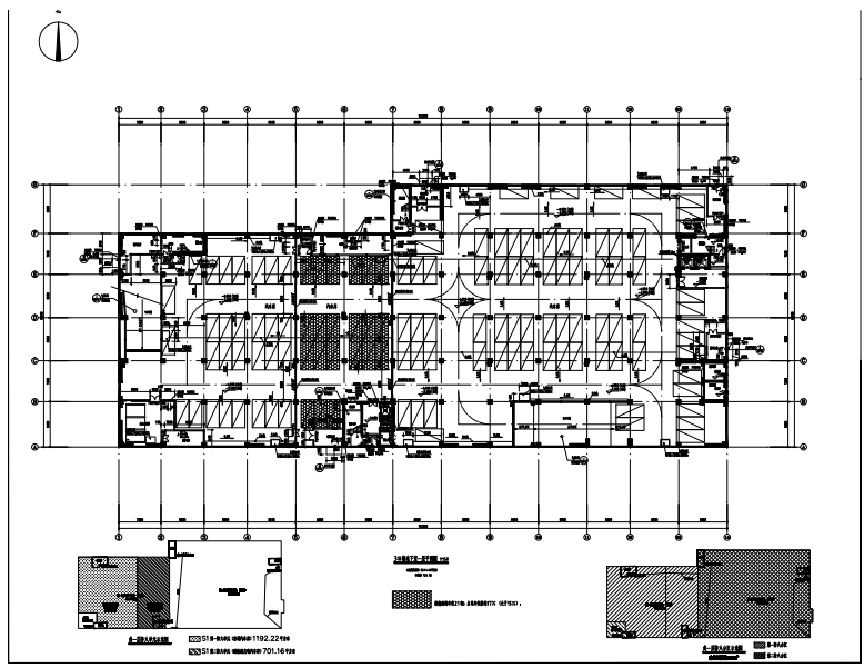
首层平面图变更后
七层平面图变更前
七层平面图变更后
八层平面图变更前
八层平面图变更后
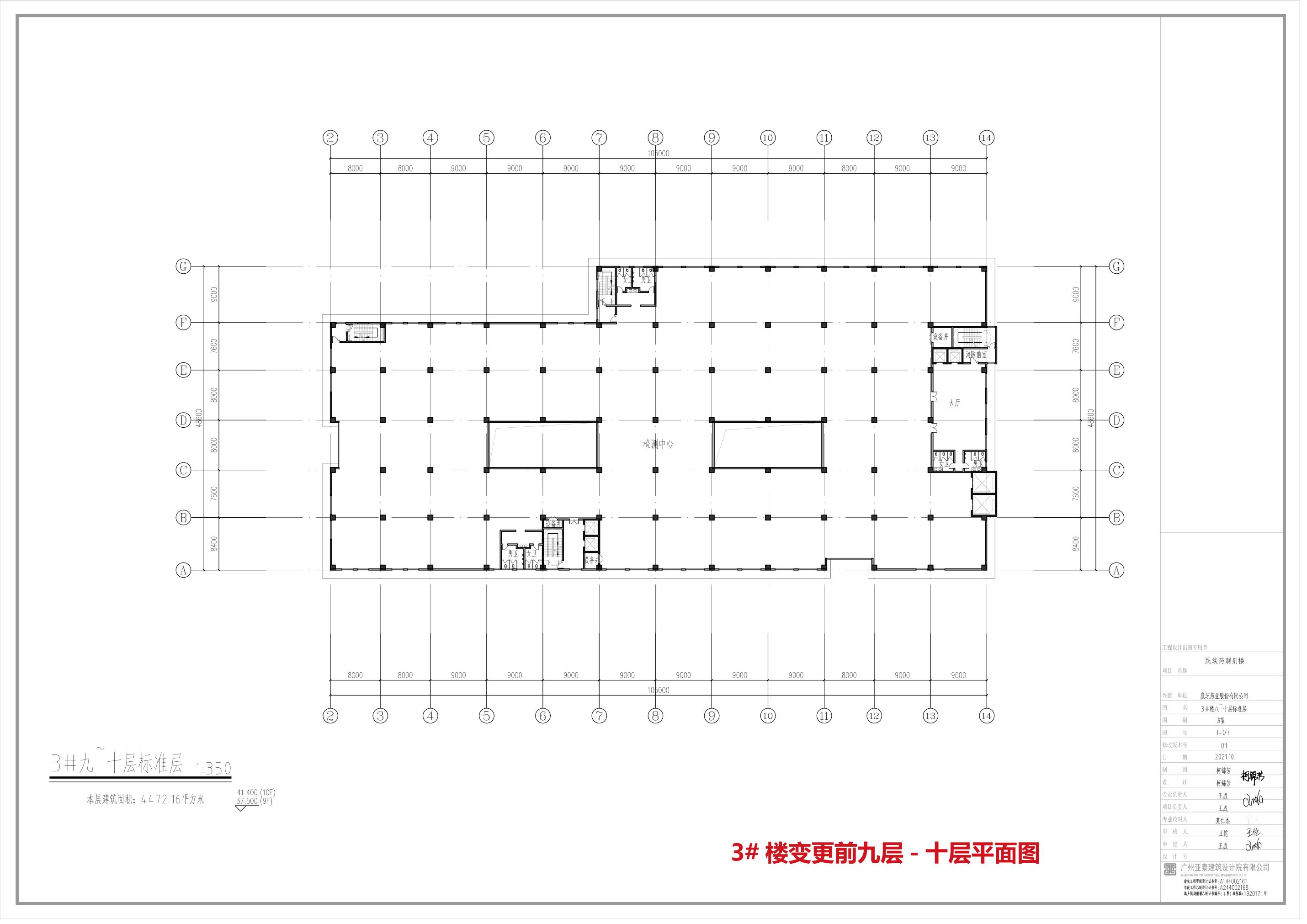
九层-十层平面图变更前
九层-十层平面图变更后
屋面层平面图变更前
屋面层平面图变更后